A323 - 靶機修改歷程
20250221
鴻宇彈簧-插銷軸承鋼@60/支,工時1~2月
20250219
鴻宇彈簧-插銷現品只有不鏽鋼,彈簧鋼@60/支,工時1~2月,軸承鋼須詢問廠商有無料



20240912


20240906


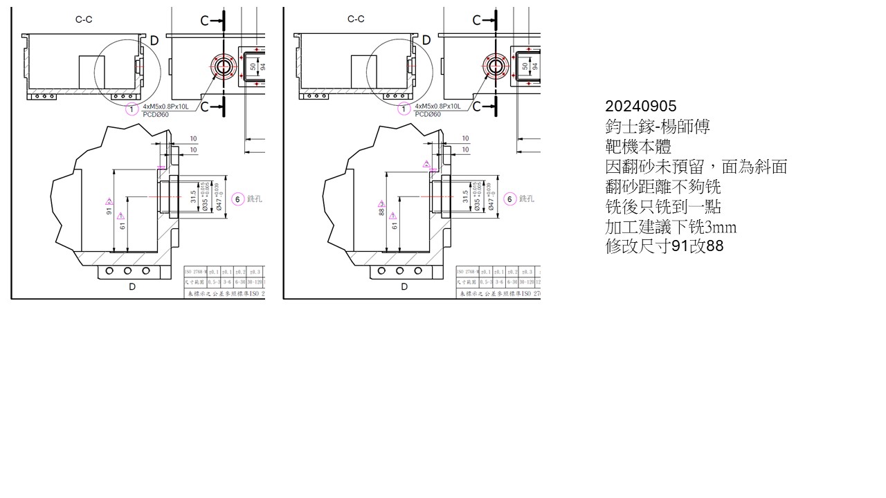
20240905


20240830

20240827

20240826
靶機馬達安裝位置底部加工
1.凸台-只需修凸出平面
2.下修-下修2mm,單邊再大10mm,在做一零件多孔可調節板
20240807

20240805



20240717


20240711
20240624
20240529
20240528
20240521
20240520
